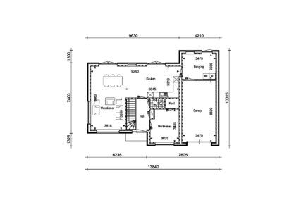
Hoofdbouw 7,4 X 10,0 m¹
Technische Omschrijving Woning Type VH35
Hoofdbouw 7,4 X 10,0 m¹
De woning wordt uitgevoerd met onderstaande omschrijving:
- Ontwerpkosten, Welstandsaanvraag en Bouwaanvraag.
- Benodigd tekenwerk / constructieberekeningen / CAR-verzekering.
- Plaatsen bouwmeterkast en bouwwaterput.
- Ontgraven fundering en aanvullen rondom de fundering.
- Standaard fundering op staal.
- Gescheiden riolering stelsel tot 1 m¹ uit de voorgevel van de woning.
- Begane grond vloer van de woning uitgevoerd in een geïsoleerde betonvloer met isolatie RC 3,7 m²K/W.
- Eerste verdieping en zoldervloer uitgevoerd in een betonnen kanaalplaatvloer.
- Spouwmuurconstructie met isolatie RC 4,7 m²K/W.
- Alle binnenmuren van de woning uitgevoerd in kalkzandsteen.
- Hellend dak voorzien van een geïsoleerde kapconstructie met isolatie RC 6,3 m²K/W.
- Hellend dak voorzien van een standaard pan inclusief toebehoren.
- Goten uitgevoerd in een kunststof bakgoot met een totale gootoverstek van 500 mm.
- Garage uitgevoerd in een spouwmuurconstructie en het platte dak wordt uitgevoerd met een betonnen vloer en geïsoleerde bitumineuze dakbedekking.
- Garage voorzien van een geïsoleerde sectionele deur.
- Berging uitgevoerd in een geïsoleerdespouwmuurconstructie met plat dak voorzien van een betonvloer met een geïsoleerde dakbedekking.
- Woning wordt uitgevoerd met standaard hardhouten kozijnen.
- Luifel bij de voordeur.
- Raamdorpels onder de houten kozijnen aan de buitenzijde.
- Vaste trap van begane grond naar de eerste verdieping uitgevoerd in een hardhouten wit gegronde trap.
- Vaste trap van eerste verdieping naar zolder uitgevoerd in een vuren wit gegronde trap.
- Houten binnendeurkozijnen in stompe uitvoering inclusief stompe binnendeuren.
- Vensterbanken aan de binnenzijde van de buitenkozijnen.
- Technische installatie.
- Cementdekvloeren op de begane grond, eerste verdieping en zolder.
- Stukadoorswerk op alle binnenmuren van de begane grond en de eerste verdieping.
- Spacwerk op de onderzijde van de betonvloeren van de eerste verdieping en de zolder.
- Exclusief keuken.
- Exclusief sanitair en tegelwerken
- Exclusief schilderwerk.
* Wijzigingen voorbehouden
Algemeen
De technische omschrijving is gebaseerd op een afgebouwde woning .
Aan deze technische omschrijving en 3D modellen kunnen geen rechten worden ontleend.
Standaard woning voldoet aan de BENG norm 2021.
Types zijn naar eigen inzicht te wijzigen (mits constructief mogelijk).
Prijzen & mogelijkheden
We geven we u graag antwoord.
Vraag een prijsopgave voor een nieuw te bouwen woning aan.
- Helder over wat je krijgt voor welke prijs
- Snelle afspraak mogelijk - geen wachttijden
- Offerte of schetsplan binnen 1 week
Vraag een offerte aan voor Type VH 35


