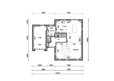
Hoofdbouw 7,3 X 10,6 m¹
Technische Omschrijving Woning Type VH02 (vrijstaande woning)
Hoofdbouw 7,3 X 10,6 m¹
Deze vrijstaande woning wordt uitgevoerd met onderstaande omschrijving:
Kosten en aanvragen
- Ontwerpkosten
- Welstandsaanvraag
- Bouwaanvraag
- Benodigd tekenwerk en constructieberekeningen
- CAR-verzekering
Bouwtechnische voorbereiding
- Plaatsen van bouwmeterkast
- Aanleg bouwwaterput
- Ontgraven fundering en aanvullen rondom de fundering
- Standaard fundering op staal
Riolering en vloeren
- Gescheiden rioleringssysteem tot 1 meter buiten de voorgevel
- Begane grondvloer: geïsoleerde betonvloer (isolatiewaarde RC 3,7 m²K/W)
- Eerste verdiepingsvloer: betonnen kanaalplaatvloer
- Cementdekvloeren op de begane grond en eerste verdieping
Muren en daken
- Spouwmuurconstructie met isolatie (isolatiewaarde RC 4,7 m²K/W)
- Binnenmuren: kalkzandsteen
- Hellend dak met geïsoleerde kapconstructie (isolatiewaarde RC 6,3 m²K/W)
- Dakbedekking: standaard dakpannen inclusief toebehoren
- Dakkapel van 3 meter
- Kunststof bakgoot met gootoverstek van 500 mm
- Kunststof windveren op de dakoverstekken van de topgevels
Garage en berging
- Garage met geïsoleerde sectionaldeur
Kozijnen, deuren en trappen
- Standaard hardhouten kozijnen
- Raamdorpels onder de buitenkozijnen
- Hardhouten, wit gegronde trap van begane grond naar eerste verdieping
- Vlizotrap van eerste verdieping naar zolder
- Houten binnendeurkozijnen met stompe binnendeuren
- Vensterbanken aan de binnenzijde van de buitenkozijnen
Afwerking en technische installaties
- Technische installatie
- Stukadoorswerk op alle binnenmuren van de begane grond en eerste verdieping
- Spacwerk op de onderzijde van de betonvloeren van de eerste verdieping
* Wijzigingen voorbehouden.
Algemeen
De technische omschrijving is gebaseerd op een afgebouwde woning .
Aan deze technische omschrijving en 3D modellen kunnen geen rechten worden ontleend.
Standaard woning voldoet aan de BENG norm 2021.
Types zijn naar eigen inzicht te wijzigen (mits constructief mogelijk).
Prijzen & mogelijkheden
We geven we u graag antwoord.
Vraag een prijsopgave voor een nieuw te bouwen woning aan.
- Helder over wat je krijgt voor welke prijs
- Snelle afspraak mogelijk - geen wachttijden
- Offerte of schetsplan binnen 1 week
Vraag een offerte aan voor Type VH 02


