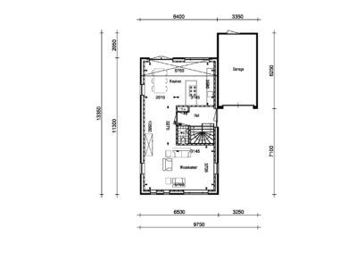
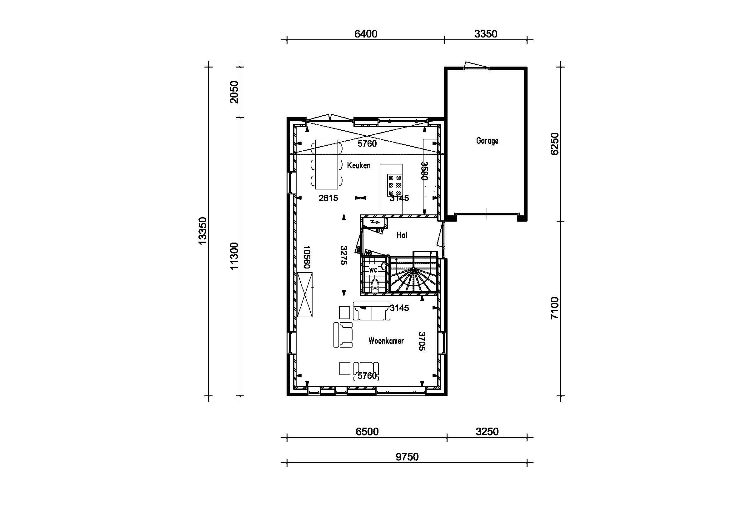
Hoofdbouw 6,5 X 11,3 m¹
Technische Omschrijving Woning Type VH27
Hoofdbouw 6,5 X 11,3 m¹
De woning wordt uitgevoerd met onderstaande omschrijving:
- Ontwerpkosten, Welstandsaanvraag en Bouwaanvraag.
- Benodigd tekenwerk / constructieberekeningen / CAR-verzekering.
- Plaatsen bouwmeterkast en bouwwaterput..
- Ontgraven fundering en aanvullen rondom de fundering.
- Standaard fundering op staal.
- Gescheiden riolering stelsel tot 1 m¹ uit de voorgevel van de woning.
- Begane grond vloer van de woning uitgevoerd in een geïsoleerde betonvloer met isolatie RC 3,7 m²K/W.
- Eerste verdieping vloer uitgevoerd in een betonnen kanaalplaatvloer.
- Spouwmuurconstructie met isolatie RC 4,7 m²K/W.
- Alle binnenmuren van de woning uitgevoerd in kalkzandsteen.
- Hellend dak voorzien van een geïsoleerde kapconstructie met isolatie RC 6,3 m²K/W.
- Hellend dak voorzien van een standaard pan inclusief toebehoren.
- Goten uitgevoerd in een kunststof bakgoot met een totale gootoverstek van 500 mm.
- Dakoverstek van de topgevels uitgevoerd met kunststof windveren.
- Garage uitgevoerd in halfsteens metselwerk in wildverband en tweezijdig voegwerk.
- Plat dak garage uitgevoerd met een houten balklaag met houten dakbeschot en bitumineuze dakbedekking.
- Garage voorzien van een geïsoleerde sectional deur.
- Woning wordt uitgevoerd met standaard hardhouten kozijnen.
- Raamdorpels onder de houten kozijnen aan de buitenzijde.
- Vaste trap van begane grond naar eerste verdieping uitgevoerd in een hardhouten wit gegronde trap.
- Vlizo trap van eerste verdieping naar zolder.
- Houten binnendeurkozijnen in stompe uitvoering inclusief stompe binnendeuren.
- Vensterbanken aan de binnenzijde van de buitenkozijnen.
- Technische installatie.
- Cementdekvloeren op de begane grond, eerste verdieping.
- Stukadoorswerk op alle binnenmuren van de begane grond en de eerste verdieping.
- Spacwerk op de onderzijde van de betonvloeren van de eerste verdieping.
- Exclusief keuken.
- Exclusief sanitair en tegelwerken
- Exclusief schilderwerk.
* Wijzigingen voorbehouden.
Algemeen
De technische omschrijving is gebaseerd op een afgebouwde woning .
Aan deze technische omschrijving en 3D modellen kunnen geen rechten worden ontleend.
Standaard woning voldoet aan de BENG norm 2021.
Types zijn naar eigen inzicht te wijzigen (mits constructief mogelijk).
Prijzen & mogelijkheden
We geven we u graag antwoord.
Vraag een prijsopgave voor een nieuw te bouwen woning aan.
- Helder over wat je krijgt voor welke prijs
- Snelle afspraak mogelijk - geen wachttijden
- Offerte of schetsplan binnen 1 week
Vraag een offerte aan voor Type VH 27

