Technische details
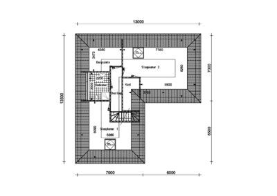
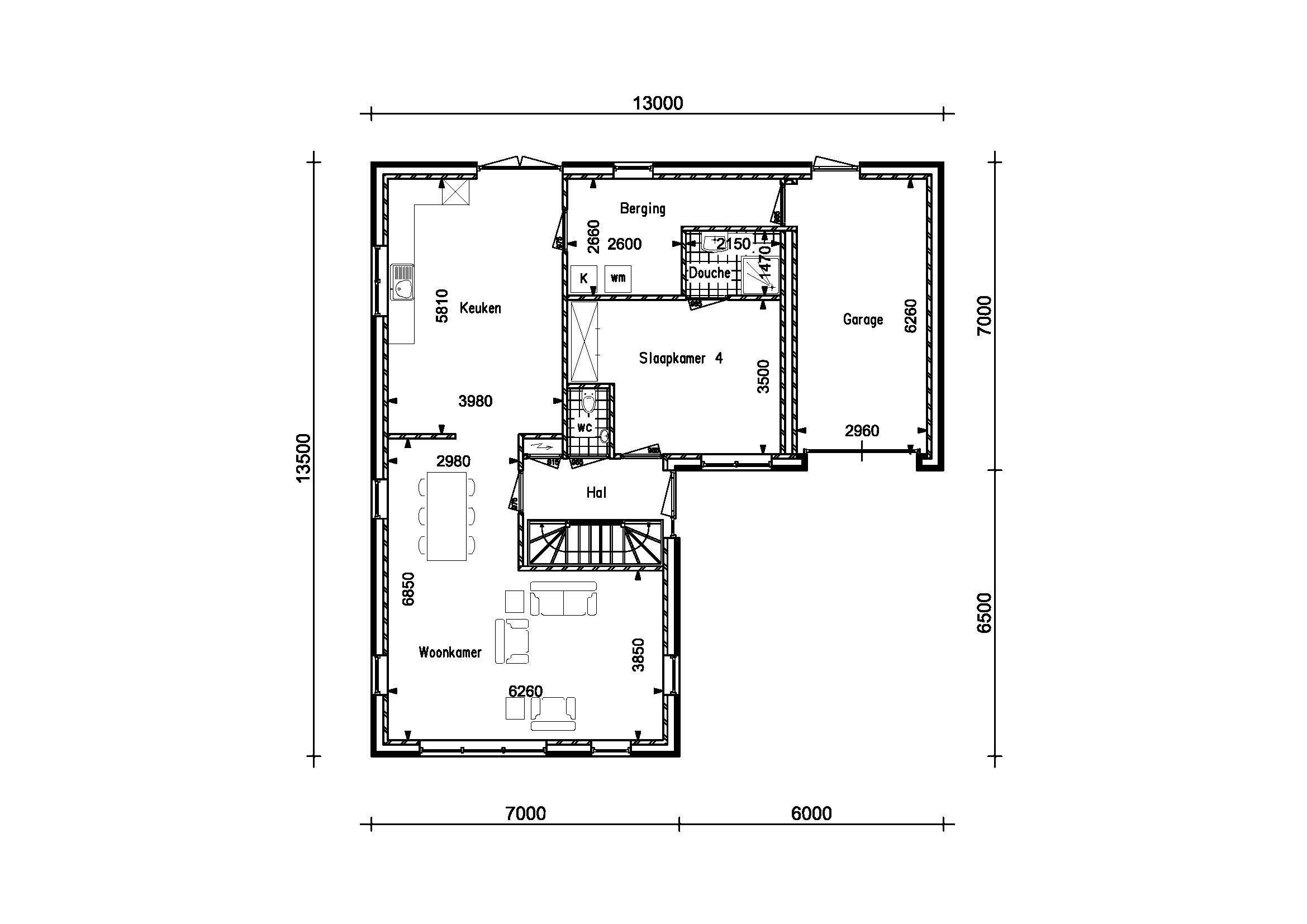
Hoofdbouw 7,0 X 13,5 m¹
Technische Omschrijving Woning Type VH19
Hoofdbouw 7,0 X 13,5 m¹
De woning wordt uitgevoerd met onderstaande omschrijving:
- Ontwerpkosten, Welstandsaanvraag en Bouwaanvraag.
- Benodigd tekenwerk / constructieberekeningen / CAR-verzekering.
- Plaatsen bouwmeterkast en bouwwaterput.
- Ontgraven fundering en aanvullen rondom de fundering.
- Standaard fundering op staal.
- Gescheiden riolering stelsel tot 1 m¹ uit de voorgevel van de woning.
- Begane grond vloer van de woning uitgevoerd in een geïsoleerde betonvloer met isolatie RC 3,7 m²K/W.
- Eerste verdieping vloer uitgevoerd in een betonnen kanaalplaatvloer.
- Spouwmuurconstructie met isolatie RC 4,7 m²K/W.
- Alle binnenmuren van de woning uitgevoerd in kalkzandsteen.
- Hellend dak voorzien van een geïsoleerde kapconstructie met isolatie RC 6,3 m²K/W.
- Hellend dak voorzien van een standaard pan inclusief toebehoren.
- Dakkapel van 3m1
- 2 dakramen
- Goten uitgevoerd in een kunststof bakgoot met een totale gootoverstek van 500 mm.
- Garage voorzien van een geïsoleerde sectionele deur.
- Woning wordt uitgevoerd met standaard hardhouten kozijnen.
- Raamdorpels onder de houten kozijnen aan de buitenzijde.
- Vaste trap van begane grond naar eerste verdieping uitgevoerd in een hardhouten wit gegronde trap.
- Vlizo trap van eerste verdieping naar zolder.
- Houten binnendeurkozijnen in stompe uitvoering inclusief stompe binnendeuren.
- Vensterbanken aan de binnenzijde van de buitenkozijnen.
- Technische installatie.
- Cementdekvloeren op de begane grond, eerste verdieping.
- Stukadoorswerk op alle binnenmuren van de begane grond en de eerste verdieping.
- Spacwerk op de onderzijde van de betonvloeren van de eerste verdieping.
- Exclusief keuken.
- Exclusief sanitair en tegelwerken
- Exclusief schilderwerk.
* Wijzigingen voorbehouden.
