Type VH 10

type-bouw

Lage gootlijn, Vrijstaand

Type VH 10

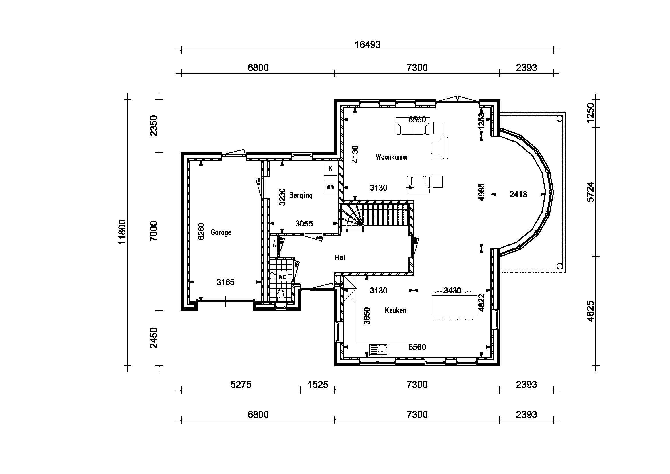
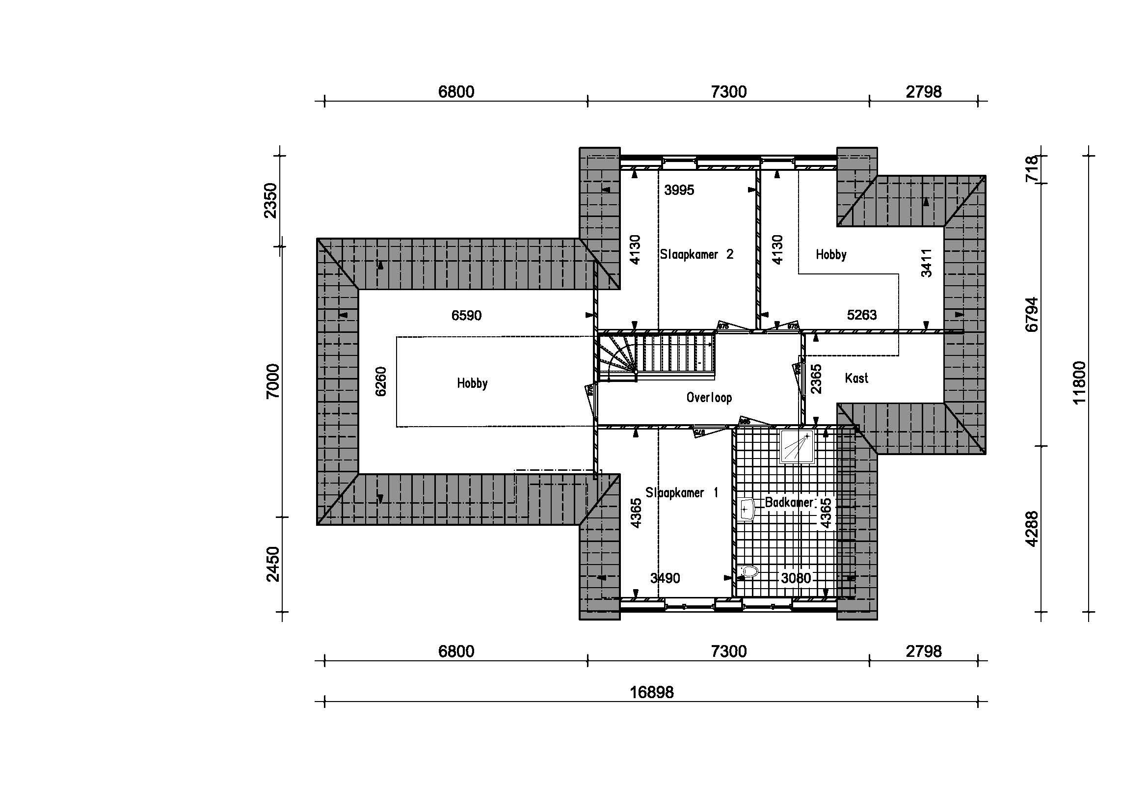
Hoofdbouw   7,3 X 11,8 m¹

Standaard vrijstaande woning met optioneel maatwerk

Deze onderhoudsarme vrijstaande woning, Type VH 10, wordt volledig opgeleverd, inclusief afbouw en zonnepanelen. De standaard uitvoering omvat een ronde erker aan de rechterzijde, royale gootoverstekken en een garage met sectionaldeur. Afmetingen, indeling, goot- en nokhoogte en raampartijen zijn naar wens aanpasbaar, met extra opties zoals een dakkapel of een extra erker.

Gebouwd met hoogwaardige materialen, heeft Type VH 10 stevige kalkzandsteen binnenwanden zonder lichte scheidingswanden of houten constructies. Samen met onze woningontwerper wordt de woning geheel naar uw wensen ontworpen.

Meer weten over het bouwen van een vrijstaand huis zoals de Type VH 10? Neem gerust contact met ons op of maak een afspraak met een van onze ontwerpers. We helpen u graag verder!

Bekijk de specificaties van dit vrijstaande huis >

Alle woningen zijn aanpasbaar

Helder over prijzen

Snelle afspraak, geen wachttijden

Hoofdbouw   7,3 X 11,8 m¹

Technische omschrijving vrijstaande woning Type VH10
De woning wordt uitgevoerd met onderstaande omschrijving:

Kosten en aanvragen

  • Ontwerpkosten
  • Welstandsaanvraag
  • Bouwaanvraag

Bouwtechnische voorbereiding

  • Benodigd tekenwerk
  • Constructieberekeningen
  • CAR-verzekering
  • Plaatsen bouwmeterkast en bouwwaterput

Riolering en vloeren

  • Gescheiden rioleringsstelsel tot 1 m¹ uit de voorgevel van de woning
  • Begane grond vloer van de woning uitgevoerd in een geïsoleerde betonvloer met isolatie RC 3,7 m²K/W
  • Eerste verdieping vloer uitgevoerd in een betonnen kanaalplaatvloer
  • Cementdekvloeren op de begane grond en eerste verdieping

Muren en daken

  • Spouwmuurconstructie met isolatie RC 4,7 m²K/W
  • Alle binnenmuren van de woning uitgevoerd in kalkzandsteen
  • Hellend dak voorzien van een geïsoleerde kapconstructie met isolatie RC 6,3 m²K/W
  • Hellend dak voorzien van een standaard pan inclusief toebehoren
  • Goten uitgevoerd in een kunststof bakgoot met een totale gootoverstek van 500 mm
  • Dakoverstek van de topgevels uitgevoerd met kunststof windveren

Garage en berging

  • Garage voorzien van een geïsoleerde sectionele deur

Kozijnen, deuren en trappen

  • Standaard hardhouten kozijnen
  • Raamdorpels onder de houten kozijnen aan de buitenzijde
  • Vaste trap van begane grond naar eerste verdieping uitgevoerd in een hardhouten wit gegronde trap
  • Vlizotrap van eerste verdieping naar zolder
  • Houten binnendeurkozijnen in stompe uitvoering inclusief stompe binnendeuren
  • Vensterbanken aan de binnenzijde van de buitenkozijnen

Afwerking en technische installaties

  • Technische installatie
  • Stukadoorswerk op alle binnenmuren van de begane grond en de eerste verdieping
  • Spacwerk op de onderzijde van de betonvloeren van de eerste verdieping
  • Exclusief keuken
  • Exclusief sanitair en tegelwerken
  • Exclusief schilderwerk

* Wijzigingen voorbehouden.

Algemeen

De technische omschrijving is gebaseerd op een afgebouwde woning .
Aan deze technische omschrijving en 3D modellen kunnen geen rechten worden ontleend.
Standaard woning voldoet aan de BENG norm 2021.
Types zijn naar eigen inzicht te wijzigen (mits constructief mogelijk).

Prijzen & mogelijkheden

We geven we u graag antwoord.
Vraag een prijsopgave voor een nieuw te bouwen woning aan.

 

  • Helder over wat je krijgt voor welke prijs
  • Snelle afspraak mogelijk - geen wachttijden
  • Offerte of schetsplan binnen 1 week
Vraag een offerte aan voor Type VH 10