Type VH 08

Kenmerken bouw: VrijstaandLage gootlijnSlapen op begane grond

Type VH 08

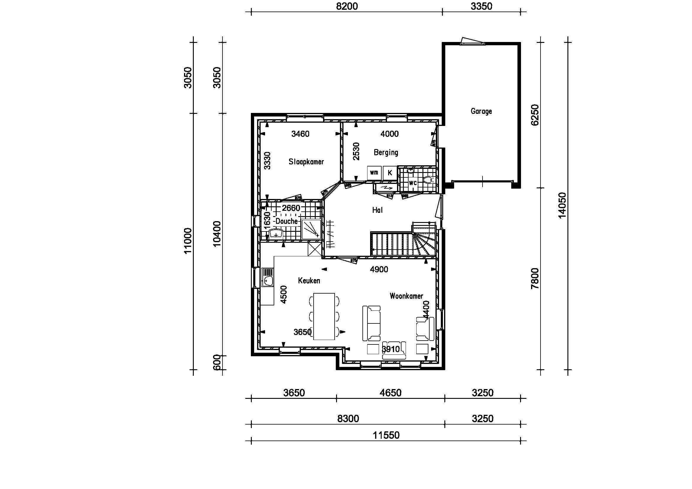
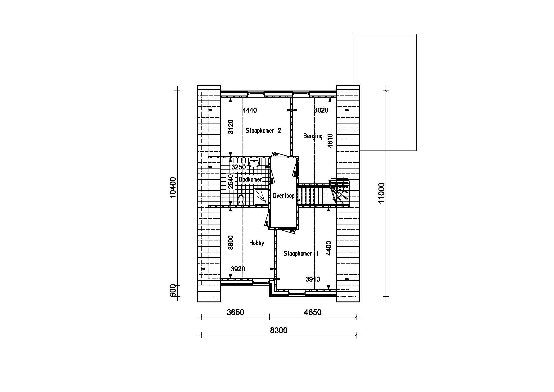
Hoofdbouw   8,3 X 11,0 m¹

Standaard vrijstaande woning met optioneel maatwerk

Type VH 08 combineert onderhoudsvriendelijkheid met comfort, ideaal voor wie een vrijstaand huis wil laten bouwen. Deze vrijstaande woning is standaard voorzien van slapen op de begane grond, afbouw inbegrepen, en zonnepanelen voor een duurzame leefomgeving. De halfsteens garage met sectionaldeur biedt gemak en opslagruimte, en de royale gootoverstekken geven de woning extra karakter.

Alle opties zijn er voor u om uw woning helemaal op maat te maken: denk aan variaties in afmeting, indeling, goothoogte, nokhoogte en raampartijen. Zelfs uitbreidingen zoals een dakkapel of erker behoren tot de mogelijkheden. Met traditioneel vakmanschap wordt deze woning gebouwd uit robuuste materialen; alle binnenmuren zijn van kalkzandsteen voor extra duurzaamheid, zonder lichte scheidingswanden of houtconstructies. Onze woningontwerpers staan voor u klaar om uw wensen tot in detail om te zetten in een prachtig ontwerp.

Meer weten over het bouwen van een vrijstaand huis zoals de Type VH 08? Neem gerust contact met ons op of maak een afspraak met een van onze ontwerpers. We helpen u graag verder!

Technische specificaties van deze vrijstaande woning

Alle woningen zijn aanpasbaar
Helder over prijzen
Snelle afspraak, geen wachttijden

Technische details

Hoofdbouw   8,3 X 11,0 m¹

Technische omschrijving vrijstaande woning Type VH08
De woning wordt uitgevoerd met onderstaande omschrijving:

Kosten en aanvragen

  • Ontwerpkosten, Welstandsaanvraag en Bouwaanvraag
  • Benodigd tekenwerk / constructieberekeningen / CAR-verzekering

Bouwtechnische voorbereiding

  • Plaatsen bouwmeterkast en bouwwaterput
  • Ontgraven fundering en aanvullen rondom de fundering
  • Standaard fundering op staal

Riolering en vloeren

  • Gescheiden riolering stelsel tot 1 m¹ uit de voorgevel van de woning
  • Begane grond vloer van de woning uitgevoerd in een geïsoleerde betonvloer met isolatie RC 3,7 m²K/W
  • Eerste verdieping vloer uitgevoerd in een betonnen kanaalplaatvloer
  • Cementdekvloeren op de begane grond, eerste verdieping

Muren en daken

  • Spouwmuurconstructie met isolatie RC 4,7 m²K/W
  • Alle binnenmuren van de woning uitgevoerd in kalkzandsteen
  • Hellend dak voorzien van een geïsoleerde kapconstructie met isolatie RC 6,3 m²K/W
  • Hellend dak voorzien van een standaard pan inclusief toebehoren
  • Goten uitgevoerd in een kunststof bakgoot met een totale gootoverstek van 500 mm
  • Dakoverstek van de topgevels uitgevoerd met kunststof windveren

Garage en berging

  • Garage uitgevoerd in halfsteens metselwerk in wildverband en tweezijdig voegwerk
  • Plat dak garage uitgevoerd met een houten balklaag met houten dakbeschot en bitumineuze dakbedekking
  • Garage voorzien van een geïsoleerde sectionele deur

Kozijnen, deuren en trappen

  • Woning uitgevoerd met standaard hardhouten kozijnen
  • Raamdorpels onder de houten kozijnen aan de buitenzijde
  • Houten binnendeurkozijnen in stompe uitvoering inclusief stompe binnendeuren
  • Vaste trap van begane grond naar eerste verdieping uitgevoerd in een hardhouten wit gegronde trap
  • Vlizotrap van eerste verdieping naar zolder
  • Vensterbanken aan de binnenzijde van de buitenkozijnen

Afwerking en technische installaties

  • Technische installatie
  • Stukadoorswerk op alle binnenmuren van de begane grond en de eerste verdieping
  • Spacwerk op de onderzijde van de betonvloeren van de eerste verdieping
  • Exclusief keuken
  • Exclusief sanitair en tegelwerken
  • Exclusief schilderwerk

* Wijzigingen voorbehouden.

Type bouw

Type bouw

Vrijstaand, Lage gootlijn, Slapen op begane grond

Handige informatie
  Algemeen:
  • De technische omschrijving is gebaseerd op een afgebouwde woning .
  • Aan deze technische omschrijving en 3D modellen kunnen geen rechten worden ontleend.
  • Standaard woning voldoet aan de BENG norm 2021.
  • Types zijn naar eigen inzicht te wijzigen (mits constructief mogelijk).
 

 

Prijzen & mogelijkheden

We geven we u graag antwoord.
Vraag een prijsopgave voor een nieuw te bouwen woning aan.

Helder over wat je krijgt voor welke prijs

Snelle afspraak mogelijk - geen wachttijden

Offerte of schetsplan binnen 1 week

 

Prijzen & mogelijkheden

We geven we u graag antwoord.
Vraag een prijsopgave voor een nieuw te bouwen woning aan.

Helder over wat je krijgt voor welke prijs

Snelle afspraak mogelijk - geen wachttijden

Offerte of schetsplan binnen 1 week

Alle woningen zijn aanpasbaar
Snelle afspraak, geen wachttijden
Helder over prijzen
Varianthuis
Privacyoverzicht

Deze site maakt gebruik van cookies, zodat wij je de best mogelijke gebruikerservaring kunnen bieden. Cookie-informatie wordt opgeslagen in je browser en voert functies uit zoals het herkennen wanneer je terugkeert naar onze site en helpt ons team om te begrijpen welke delen van de site je het meest interessant en nuttig vindt.