Type VH 42

Kenmerken bouw: VrijstaandPlatdak

Type VH 42

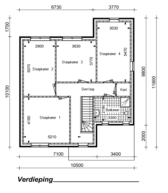
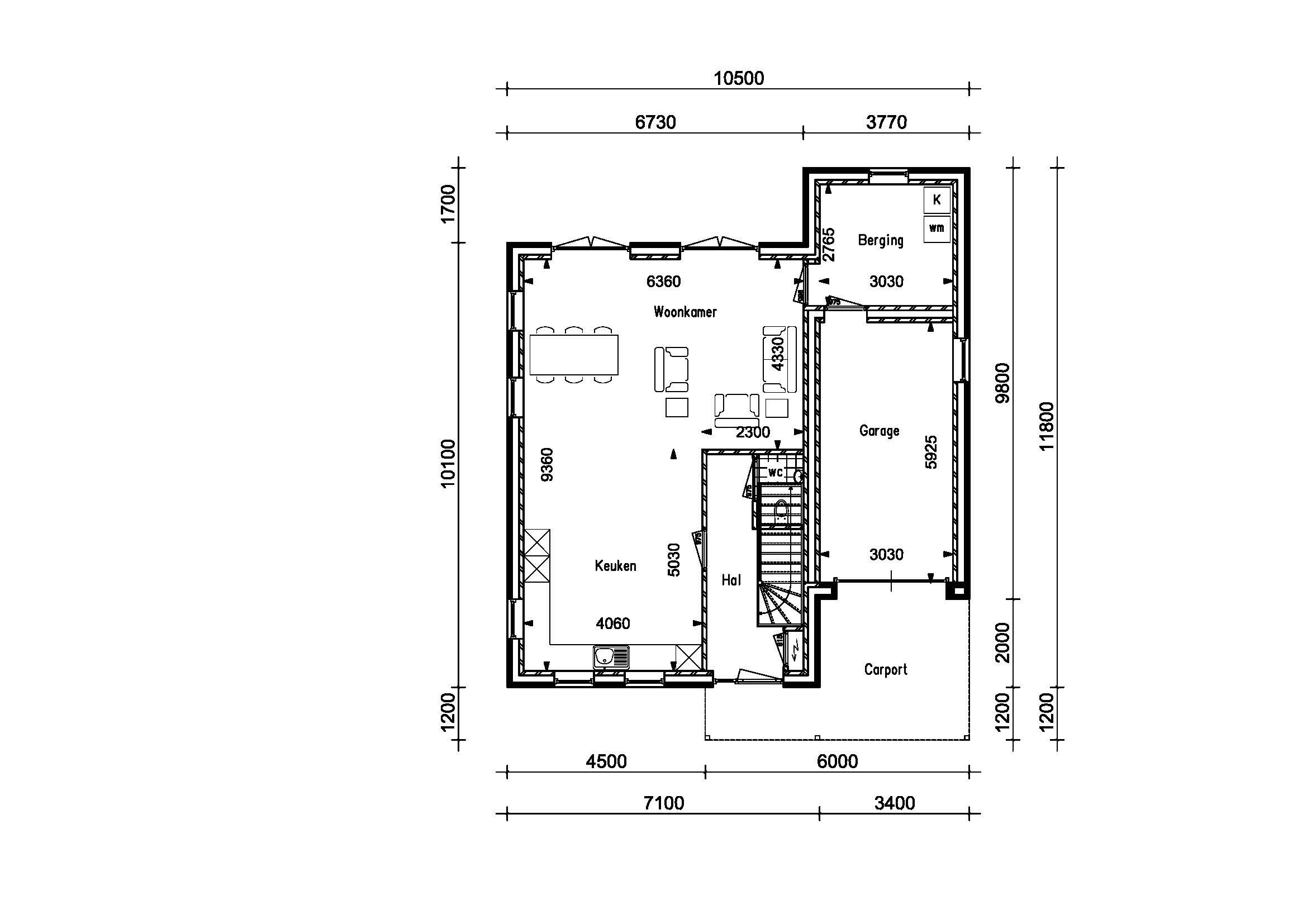
Hoofdbouw   7,1 X 10,1 m¹

Standaardwoning met optioneel maatwerk

De prijs van deze onderhoudsarme  vrijstaande platdak  woning  is inclusief afbouw en zonnepanelen. De woning wordt standaard uitgevoerd met een geïsoleerde berging ,  een geïsoleerde  garage met sectionaldeur en een carport. De afmeting, indeling,  en raampartijen zijn naar wens aan te passen. Ook is het mogelijk om bijvoorbeeld een erker te plaatsen. De woning wordt traditioneel gebouwd met oerdegelijke materialen en alle binnenwanden worden uitgevoerd in kalkzandsteen, dus geen lichte scheidingswanden of houtskeletonderdelen. De woning wordt op maat gemaakt en de mogelijkheden zijn praktisch onbeperkt, onze woningontwerper maakt  de woning precies naar uw wensen.

Meer details 

Alle woningen zijn aanpasbaar
Helder over prijzen
Snelle afspraak, geen wachttijden

Technische details

Hoofdbouw   7,1 X 10,1 m¹

Technische Omschrijving Woning Type VH42

Hoofdbouw 7,1 X 10,1 m¹

 

De woning wordt uitgevoerd met onderstaande omschrijving:

 

  • Ontwerpkosten, Welstandsaanvraag en Bouwaanvraag.
  • Benodigd tekenwerk / constructieberekeningen / CAR-verzekering.
  • Plaatsen bouwmeterkast en bouwwaterput..
  • Ontgraven fundering en aanvullen rondom de fundering.
  • Standaard fundering op staal.
  • Gescheiden riolering stelsel tot 1 m¹ uit de voorgevel van de woning.
  • Begane grond vloer van de woning uitgevoerd in een geïsoleerde betonvloer met isolatie RC 3,7 m²K/W.
  • Eerste verdieping en zoldervloer uitgevoerd in een betonnen kanaalplaatvloer.
  • Spouwmuurconstructie met isolatie RC 4,7 m²K/W.
  • Alle binnenmuren van de woning uitgevoerd in kalkzandsteen.
  • Plat dak voorzien van een  bitumineuze dakbedekking met isolatie RC 6,3 m²K/W.
  • Garage uitgevoerd in een spouwmuurconstructie en het platte dak wordt uitgevoerd met een betonnen vloer en een geisoleerde bitumineuze dakbedekking.
  • Garage voorzien van een geïsoleerde sectional deur.
  • Berging uitgevoerd in een spouwmuurconstructie met plat dak voorzien van een betonvloer met een geïsoleerde dakbedekking.
  • Carport aan de voorzijde van de woning.
  • Woning wordt uitgevoerd met standaard hardhouten kozijnen.
  • Raamdorpels onder de houten kozijnen aan de buitenzijde.
  • Vaste trap van begane grond naar eerste verdieping uitgevoerd in een hardhouten wit   gegronde trap.
  • Houten binnendeurkozijnen in stompe uitvoering inclusief stompe binnendeuren.
  • Vensterbanken aan de binnenzijde van de buitenkozijnen.
  • Technische installatie.
  • Cementdekvloeren op de begane grond, en de eerste verdieping.
  • Stukadoorswerk op alle binnenmuren van de begane grond en de eerste verdieping.
  • Spacwerk op de onderzijde van de betonvloeren van de eerste verdieping en de zolder.
  • Exclusief keuken.
  • Exclusief sanitair en tegelwerken
  • Exclusief schilderwerk.

 

Algemeen:

  • De technische omschrijving is gebaseerd op een afgebouwde woning .
  • Aan deze technische omschrijving en 3D modellen kunnen geen rechten worden ontleend.
  • Standaard woning voldoet aan de BENG norm 2021.
  • Types zijn naar eigen inzicht te wijzigen (mits constructief mogelijk).

 

* Wijzigingen voorbehouden.

Type bouw

Type bouw

Vrijstaand, Platdak

 

Prijzen & mogelijkheden

We geven we u graag antwoord.
Vraag een prijsopgave voor een nieuw te bouwen woning aan.

Helder over wat je krijgt voor welke prijs

Snelle afspraak mogelijk - geen wachttijden

Offerte of schetsplan binnen 1 week

 

Prijzen & mogelijkheden

We geven we u graag antwoord.
Vraag een prijsopgave voor een nieuw te bouwen woning aan.

Helder over wat je krijgt voor welke prijs

Snelle afspraak mogelijk - geen wachttijden

Offerte of schetsplan binnen 1 week

Alle woningen zijn aanpasbaar
Snelle afspraak, geen wachttijden
Helder over prijzen
Varianthuis
Privacyoverzicht

Deze site maakt gebruik van cookies, zodat wij je de best mogelijke gebruikerservaring kunnen bieden. Cookie-informatie wordt opgeslagen in je browser en voert functies uit zoals het herkennen wanneer je terugkeert naar onze site en helpt ons team om te begrijpen welke delen van de site je het meest interessant en nuttig vindt.